尼崎市杭瀬北新町3丁目より新築戸建の登場です。
阪神「杭瀬」駅徒歩4分|屋上庭園付き・充実設備の4LDK邸宅
阪神本線「杭瀬」駅から徒歩約4分。
通勤・通学に便利な駅近立地に、敷地約38坪超・駐車3台可能のゆとりある新築戸建が誕生します。
■ 暮らしやすさを追求した間取り・空間設計
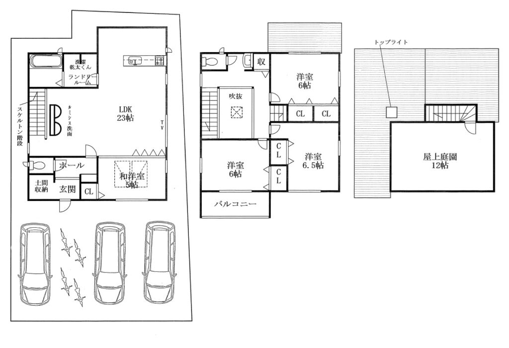
間取りはファミリーに使いやすい4LDK。
LDKを中心に、家族が自然と集まりやすい動線設計となっています。
さらに本物件の大きな魅力は、約12帖の屋上庭園。
BBQやお子様の遊び場、プライベートなアウトドア空間として、戸建ならではの贅沢な時間を楽しめます。
■ 日常を快適にする充実の住宅設備
設備面もワンランク上の仕様を採用しています。
-
床暖房4か所設置で冬も足元から快適
-
**ガス乾燥機「乾太くん」**採用で洗濯の時短・家事負担軽減
-
浴室乾燥暖房機・ミストサウナ・浴室テレビ付きの1616サイズ浴室
-
玄関はタッチキーシステム+広々土間収納
-
LOW-Eペアガラス・1階電動シャッターで断熱性・防犯性にも配慮
-
EV車用外部コンセント完備で将来にも対応
また、外壁には37mmスーパーボードを採用し、耐久性にも優れています。
■ ZEH水準住宅 × 安心の保証体制
本物件はZEH水準住宅(断熱等級5・一次エネルギー消費量等級6)。
省エネ性能が高く、光熱費を抑えながら快適な暮らしが可能です。
-
地盤保証:10年
-
建物保証:10年
長く安心してお住まいいただける住まいです。
■ 生活利便性の高い住環境
周辺には杭瀬商店街があり、日常の買い物にも便利。
公園も近く、子育て世帯にも嬉しい住環境が整っています。
-
長洲小学校・小田中学校区
-
スーパー・商業施設・医療施設が身近に充実
駅近でありながら、落ち着いた住環境を兼ね備えた立地です。


